皆さんこんにちは。建築学科の杉本です。
長そうで短かった1年間のカリキュラムも、無事終了しました。
今回は、2年生後期に行われた「建築設計演習Ⅰ(建築デザイン&伝統建築)」の様子をご紹介します。
■「建築設計演習Ⅰ」とは?
本演習では、第1課題では、全員が「集合住宅」を設計します。第2課題は建築デザイン領域と伝統建築領域のどちらかを選択できます。建築デザイン領域では「保育園」の設計、伝統建築領域では「二条城東大手門の図面作成と模型製作」を行いました。
①課題「交流スペースを持つ低層集合住宅」
敷地は、京都東山区にある大和大路通りに面する場所。 東側には京都国立博物館があり、東山と京都タワーを望むことができる住居地域です。

少子高齢化、IT技術の発達、コロナ禍、インバウンドの再来——
大きく変化する社会の中で、「集まって住むとはどういうことか」を問い直す課題となりました。
授業では、複数の教員がローテーションで指導。 多角的な視点からアドバイスを受けながら、学生たちは試行錯誤を重ねました。




集合住宅最終作品紹介
☆「縁側から生まれるシェア住居」平出さつき


三か所の共有拠点を中心に、地域性を取り込みながら人と人の関係が生まれる住まいを提案しています。
そこで繰り広げられるふるまいが人々の心を自然につなげる仕掛けとなっています。
☆「囲炉裏端住まい」冨田彩月


暖かいものを囲む暮らしが集合住宅全体と各住戸に展開しています。
世代を超えた助け合いが生まれる、温もりのある住まい方を示した作品です。
②課題「文化と暮らしをつなぐ保育園」
保育園の敷地は集合住宅課題の北隣。
前課題で考えた「この地域に住む」という視点を引き継ぎながら、子どもたちが遊びや集団行動を通して、のびのびと自己を発揮できる空間を設計することが課題です。


L字型という難しい敷地条件の中で、アールの形状、斜めの配置、北側園庭の採用などさまざまな工夫が見られました。特に保育室などの生活エリアと園庭のつながりに関しては、多様で豊かな提案が生まれていました。
保育園最終作品紹介
☆「はじめましてをいつまでも―文化と暮らしをつなぐ保育園―」河野飛鳥


人・自然・五感でつながる出会いが重なり、やがて暮らし、文化に成長していく——
そのような背景を持つ保育園として丁寧に設計されています。
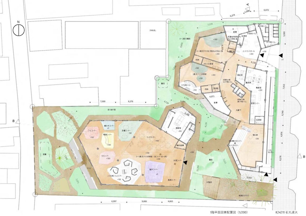
☆「ダン ダン ツンツン―こどもを育てる段差と端っこ」石丸凌大


蛇のようなグニャグニャとしたテラス、階段下のこもれる空間と幅広の大きな階段、高い天井と小さな間口。
こどもたちのワクワクを引き出す仕掛けが随所にちりばめられ、居場所の豊かさが感じられる設計です。
③課題「二条城東大手門の図面作成と模型製作」
現在の二条城東大手門は1662年(寛文2年)に建て替えられたものです。
まずは、現地見学からスタート。
実物をじっくり観察し、スケール感や細部の意匠を体感します。


その後、配られた図面から、平面図、梁行断面図、正面図などを選んで、手書きでトレース。
並行して、1/30のスケールで模型を製作しました。
ヒノキやバルサ材、粘土を用い、部材寸法の拾い出し、仕口の加工、屋根組み、石垣との調整など、
伝統建築ならではの工程を一つ一つ体験していきます。





一つ一つの工程を積み重ね、ついに完成です。


模型を通して、図面が示す各部材の意味や技法、構造的な役割が具体的に理解できたのではないでしょうか。また、共同製作を通じてチームワークの大切さも実感できたことと思います。
集合住宅、保育園、そして伝統建築。
スケールもテーマも異なる課題を通して、設計の幅と奥行きを学んだ一年でした。
来年度もさらに高度な演習へと進みます。
この経験を糧に、また一歩ずつ成長していきましょう~(^^)/
(文責:杉本直子)




